賬號將于20XX年X月X日過期,盡快續費哦!
立即續費簽到成功,積分+1
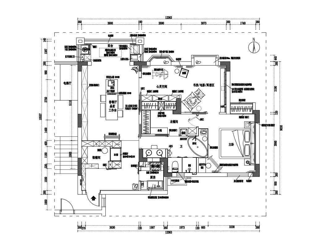
舍去傳統的客餐廳設計,將整個空間打開,這里可以作為會客廳跟朋友們喝喝茶聊聊天,平時也可以在這里用餐,同時陽臺打通延伸空間顯得更加開闊,窗外的鳥叫聲也聽的更加悅耳。
這是個多功能空間,健身娛樂,解放心扉的心靈空間。
臥室是休息睡眠的地方,業主喜歡光線低沉些,在高級灰的背景下由燈光動線去點綴升華整個空間。
衛生間跟前面的主臥剛好是一個明暗的呼應,下班回來泡在浴缸里,一切的煩惱都煙消云散。
衣帽間門板用的是跟墻面一樣微水泥設計,使得整個空間整潔不凌亂。
入戶玄關這里是回家的第一個空間,墻面天花跟柜門多用的是原木色的搭配設計,讓人切身感受到高冷之下的柔和是種什么樣的感覺,是回家的感覺。。
業主也是個旅行愛好者,有很多的包包跟帽子,還有收藏藝術精美的雨傘,這個空間要讓客人進來換鞋同時要有一種儀式感。
廚房雖小,但業主說平時在廚房空間很少,基本功能已經足夠使用,使用的是集成爐灶跟集成水槽在小空間發揮更大的作用。
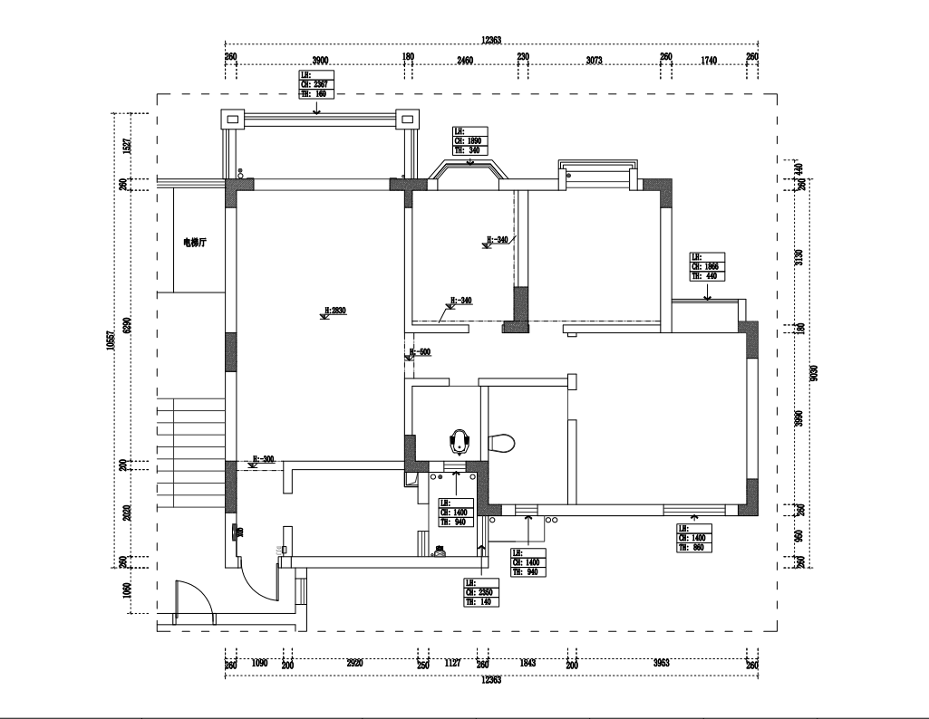
最后放上改造前后的平面圖供大家參考討論
? 著作權歸原作者所有。商業轉載請聯系作者獲得授權,非商業轉載請注明出處。
平臺資源位+移動端矩陣+個人IP打造,助你廣獲客源
高清、超清、4K、全景四種清晰度均可參與投稿。
從整體布局、色彩搭配以及創意靈感等方面彰顯個人設計主張,原創不得抄襲,在平臺內無相似方案,例如不可套用樣板間。
每個空間至少2張效果圖+1張全案全景圖展示,方案描述完整,所有空間需命名。




























